As part of the Aurora consortium (EPICo, RebelValley, Groep Van Roey, and Democo) and in collaboration with Bogdan & Van Broeck and OYO Architects, Urban Platform developed this secondary school project in response to the client’s ambitious programme: designing an open school based on the school’s values, located in a dense, multicultural neighbourhood of Brussels.
This project is all about ‘connecting’: the school as the central connecting element within the community and the connections that pupils form with their school and the rest of the world.
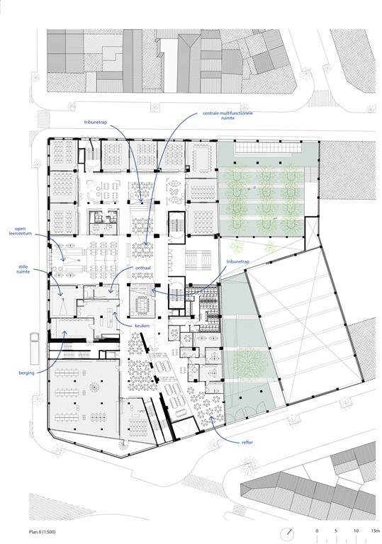
The existing industrial property will be fully preserved and converted for use as an educational facility. The incidence of light and air will be increased through the introduction of a central, elongated atrium. This will improve the accessibility, circulation and organizational structure while ensuring a transition from public to less public spaces. The atrium is the ideal place for encounters. Versatility and flexibility are key.
The empty remaining part of the plot will be filled with a corner building housing the technical classes that will serve to showcase the school to the neighbourhood. The semi-underground level will be upgraded and used as an access area featuring a centrally located pavilion: the orangery. This will regulate the flows of people for school functions and more general use. It is designed as a transition space between the city and the school, hot and cold, indoors and outdoors. The sports hall will have a prominent location, separated from the school, to facilitate its use by third parties. The free space will be as green as possible and deployed as part of the urban fabric.
The various school areas will create a living environment adapted to young people. Both cosy and efficient, on the right scale, large and spacious or small and embracing, soothing or stimulating, depending on the context. A safe and welcoming learning environment in which pupils can learn to become independent.
 
         
                                     
                                     
                                     
                                     
                                     
                                     
                                     
                                     
                                         
                                         
                                         
                                         
                                         
                                     
                                     
                                         
                                         
                                         
                                         
                         
                        